La sala del commiato di Cuneo si farà a Borgo Gesso: la spesa prevista è di 800mila euro
L’area individuata è a fianco dell’ex Onpi, in corso di riqualificazione. Per la progettazione servirà circa un anno, si ipotizza una capienza di cento personeDopo anni di interpellanze, sopralluoghi, raccolte di firme e qualche polemica la sala del commiato per i funerali laici è pronta ad essere realizzata. Ci sono i soldi, 800mila euro che l’amministrazione ha stanziato nell’ultimo bilancio. C’è anche l’area, quella della ex Residenza Bisalta di Borgo San Giuseppe, già individuata anni fa come possibile destinazione.
Fino ad oggi, ricorda l’assessore ai Lavori pubblici e vicesindaco Luca Serale, per le cerimonie di questo tipo sono state utilizzate in modo “improprio” altre sale: “Questa è la prima amministrazione che ha fatto un passo concreto. Se n’era parlato più volte in commissione e con interpellanze in consiglio comunale, ma non c’era mai stata una volontà economica”. Il documento di fattibilità delle alternative progettuali, predisposto dal settore cimiteriale, ha ritenuto idoneo lo spazio che sorge a fianco dell’ex Onpi, oggetto di un intervento del Pinqua che porterà alla creazione di 42 alloggi per studenti, anziani e famiglie bisognose.

“Si è scelta quell’area intanto per evitare nuovo consumo di suolo” precisa Serale: “In questo immobile, ormai inutilizzato da decenni, c’erano una cappella e una camera mortuaria. Dopo è stata adibita a magazzino della biblioteca e oggi è completamente vuota. È una sala di capienza adeguata e un completamento dell’intervento che andiamo a fare col Pinqua. Verrà dotata di un accesso carraio indipendente da via Rocca de Baldi, con una dotazione di parcheggi importante”. Le alternative sarebbero molto più costose: “Non ci sono altri edifici che soddisfino questa esigenza: se decidessimo per una nuova costruzione i costi sarebbero nettamente maggiori, al netto dell’acquisto di un terreno. Aggiungo che c’è piena compatibilità urbanistica e non è un dettaglio”. L’area non è distante dall’altipiano: “Borgo Gesso, come Madonna dell’Olmo, è più un sobborgo che una frazione”.
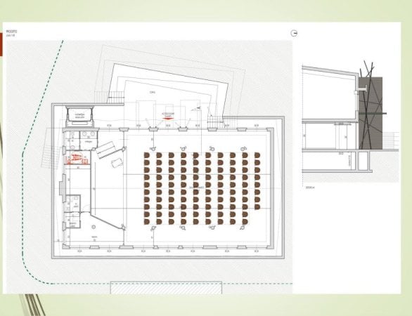
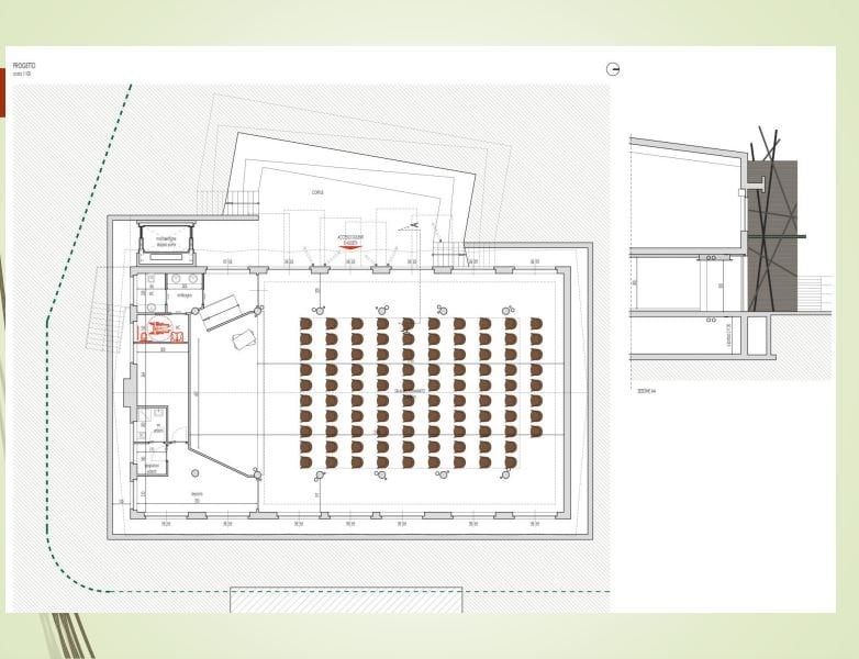
Il costo presunto di una costruzione ex novo sarebbe stato di 1 milione e 300mila euro, secondo le stime dei tecnici comunali: mentre il costo presunto per la riqualificazione è di 800mila euro. Il luogo soddisfa le richieste della legge regionale del 2007, ovvero l’esistenza di una zona urbanisticamente idonea con almeno 1500 metri quadrati a disposizione e un accesso indipendente. Non c’è ancora un progetto ma un’ipotesi preliminare, nella quale si prevede l’inserimento di un ascensore (necessario sia per il trasporto del defunto che per l’abbattimento delle barriere architettoniche) e l’inserimento di una rampa, servizi igienici, un locale tecnico, un ripostiglio e un locale ufficio. La capienza totale prevista è di cento persone: all’esterno, una corte ribassata permetterà anche l’eventuale celebrazione di commemorazioni all’aperto.
Riguardo alle tempistiche, l’assessore indica circa un anno per la progettazione, calcolando la realizzazione dei lavori nel 2027: “Siamo in conclusione sul cantiere Pinqua e quando finirà quel cantiere inizieremo le lavorazioni. Così come gli altri comuni limitrofi utilizzano le camere mortuarie potranno utilizzare la sala del commiato: prevedo numeri esponenziali sull’utilizzo. Dovremo partire in maniera ponderata, magari con un bando di gestione, in un percorso che potrà essere concluso dalla prossima consiliatura”.

Bocciata l’ipotesi Bagni Municipali: “Troppi vincoli”
Tra i consiglieri le reazioni sono di soddisfazione per il compimento di un percorso sollecitato più volte, all’interno del Consiglio comunale, da esponenti di Cuneo per i Beni Comuni, Cuneo Solidale Democratica e Partito Democratico, e all’esterno dai Radicali che ne hanno fatto oggetto di molteplici rivendicazioni.
La scelta del luogo, però, non convince tutti. In particolare è Franco Civallero (Forza Italia) a preferirne un’altra, gli ex Bagni Municipali di via Vittorio Amedeo: “Le sale del commiato vengono realizzate di solito al centro, per dare a tutti la possibilità di accedere: per questo avevo chiesto se fosse stato fatto uno studio sugli ex Bagni, una struttura bellissima che sta andando in rovina”. Contro l’ipotesi cozzano vari elementi, dalla presenza di un vincolo architettonico alla difficoltà di adeguare gli spazi e fornire parcheggi adeguati: “È un edificio di pregio e sottoposto a vincoli, in centro città. Una sala del commiato richiede determinate superfici e un parcheggio” sottolinea in proposito Flavia Barbano (Centro per Cuneo). “Vedo bene la collocazione di questa struttura fuori dall’altipiano, perché non servirà solo agli abitanti dell’altipiano” puntualizza Elio Beccaria (Cuneo Civica).
Giancarlo Boselli (Indipendenti) solleva invece un altro tema, quello dei ritardi nella realizzazione: “Come mai questa soluzione ha dovuto attendere ben quindici anni? Non credo di svelare un segreto se dico che nel 2011, a fine mandato, ci fu un sopralluogo e c’era un orientamento favorevole”. La replica arriva dall’assessore: “Sono passati tre mandati e si sono fatte valutazioni rispetto ad altri immobili”. Mancavano però le possibilità e, soprattutto, mancavano i soldi. Questa volta invece c’è un progetto pronto a partire.

CUNEO cuneo - Luca Serale - Giancarlo Boselli - lavori - Consiglio comunale - Comune - Ex Onpi - Forza Italia - funerali - Borgo San Giuseppe - Centro Per Cuneo - laicità - Sala del Commiato - Indipendenti - Franco Civallero - Elio Beccaria - Flavia Barbano - Cuneo Civica






Condividi